LOCATION AKLUJ, MAHARASHTRA, INDIA
PLOT AREA - 11,501 Sq. m.
BUILT UP AREA: 2200 SQ.M
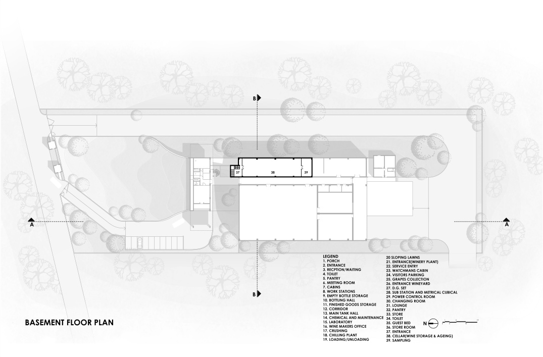
In an industrial building, the performance of the building in terms
of its function is of paramount importance. The soul of this
building is the intricately designed spaces which interact with each
other in such a manner that visitor to the
building can feel the process of wine making.
This project has been designed using climate as the basic
parameter of the design and has been successfully completed
within a very stipulated budget i.e. 850rs/sq. ft.
This was made possible with fast construction techniques, low
cost natural materials and most important reuse of materials
from the site itself.
In this project the building envelope needs to change its character
for different zones performing different activities. The tank hall
and wine storing cellar which is not inhabited need a total barrier
between interior and exterior. Whereas the administrative area
and the bottling plant need a filter with fenestrations to control
light and ventilation.
Landscape plays a key role in the campus not only as a visually
pleasing element but also as a microclimate modifier. The
landscape for winery is designed such that it merges with
surroundings and has natural flair to it.
National Award – Industrial Category – Winery at Akluj (2014)
National Award - Excellence in Architecture in industrial category - Winery at Akluj (2012)